خرید ژنراتور مکالته مدل ECO 28-2L4
اگر دنبال ژنراتوری هستید که هر شرایطی را تحمل کند، کم مصرف باشد و عمر طولانی داشته باشد، ژنراتور مکالته مدل ECO 28-2L4 برای شماست. از برق شهری بی نیاز شوید و با خیالی راحت به کارتان ادامه دهید. بهترین مدل ها در عارف دیزل، همین حالا موجود هستند!
ضمانت و گارانتی عارف دیزل به همراه مشاوره رایگان و نصب و اجرای حرفه ای
📞 مشاوره رایگان 09122847033
قیمت ژنراتور مکالته مدل ECO 28-2L4
خیلی ها وقتی صحبت از خرید ژنراتور می شود، فقط به قیمت فکر می کنند. اما شما به این فکر کنید که یک ژنراتور خوب، چقدر از هزینه های اضافی در آینده جلوگیری می کند! مکالته، سرمایه گذاری ای است که از روز اول برای شما کار می کند. در عارف دیزل، قیمت ها واقعی و منطقی است!
ویژگی های الکتریکی ژنراتور مکالته مدل ECO 28-2L4
| فرکانس (Hz) | ۵۰ | ۵۰ | ۵۰ | ۵۰ | ۶۰ | ۶۰ | ۶۰ | ۶۰ | |||||
|---|---|---|---|---|---|---|---|---|---|---|---|---|---|
| ولتاژ (ستاره) (V) | ۳۸۰ | ۴۰۰ | ۴۱۵ | ۴۴۰ | ۴۱۵ | ۴۴۰ | ۴۶۰ | ۴۸۰ | |||||
| کلاس قدرت نامی H (kVA) | ۲۵ | ۲۵ | ۲۵ | – | ۲۶ | ۲۷٫۵ | ۳۰ | ۳۰ | |||||
| kW | ۲۰ | ۲۰ | ۲۰ | – | ۲۰٫۸ | ۲۲ | ۲۴ | ۲۴ | |||||
| کلاس قدرت نامی F (kVA) | ۲۳ | ۲۳ | ۲۳ | – | ۲۴ | ۲۵٫۵ | ۲۷٫۵ | ۲۷٫۵ | |||||
| kW | ۱۸ | ۱۸ | ۱۸ | – | ۱۹٫۲ | ۲۰٫۴ | ۲۲ | ۲۲ | |||||
| تنظیم با SR7/2 | ±۱٫۵% با هر فاکتور قدرت و تغییرات سرعت بین -۵% تا +۳۰% | ||||||||||||
| کلاس عایق | H | ||||||||||||
| اجرا | بدون برس | ||||||||||||
| پیچش استاتور | ۱۲ انتها | ||||||||||||
| روتور بدون قفس دما | |||||||||||||
| کلاس بهرهوری H 4/4 (%) | ۸۷٫۶ | ۸۸ | ۸۸٫۳ | – | ۸۹ | ۸۹٫۳ | ۸۹٫۵ | ۸۹٫۹ | |||||
| کلاس بهرهوری ۳/۴ (%) | ۸۸ | ۸۸٫۳ | ۸۸٫۴ | – | ۸۹٫۵ | ۸۹٫۷ | ۸۹٫۹ | ۹۰٫۱ | |||||
| کلاس بهرهوری ۲/۴ (%) | ۸۶٫۱ | ۸۶٫۲ | ۸۶٫۲ | – | ۸۷٫۹ | ۸۸ | ۸۸٫۱ | ۸۸٫۲ | |||||
| کلاس بهرهوری ۱/۴ (%) | ۸۴ | ۸۳٫۸ | ۸۳٫۸ | – | ۸۶٫۱ | ۸۵٫۹ | ۸۶٫۱ | ۸۶ | |||||
| واکنشها (kVA F) | Xd % | ۲۰۱٫۷ | ۱۸۲ | ۱۶۹٫۱ | – | ۲۱۱٫۰ | ۱۹۸٫۵ | ۱۹۸٫۲ | ۱۸۲ | ||||
| Xd’ % | ۱۷٫۷۳ | ۱۶ | ۱۴٫۸۶ | – | ۱۸٫۵۵ | ۱۷٫۴۵ | ۱۷٫۴۲ | ۱۶ | |||||
| Xd” % | ۹٫۹۷ | ۹ | ۸٫۳۶ | – | ۱۰٫۴۳ | ۹٫۸۲ | ۹٫۸۰ | ۹ | |||||
| Xq % | ۸۲٫۰ | ۷۴ | ۶۸٫۷ | – | ۸۵٫۸ | ۸۰٫۷ | ۸۰٫۶ | ۷۴ | |||||
| Xq’ % | ۸۲٫۰ | ۷۴ | ۶۸٫۷ | – | ۸۵٫۸ | ۸۰٫۷ | ۸۰٫۶ | ۷۴ | |||||
| Xq” % | ۲۲٫۲ | ۲۰ | ۱۸٫۶ | – | ۲۳٫۲ | ۲۱٫۸ | ۲۱٫۸ | ۲۰ | |||||
| X2 % | ۱۴٫۹۶ | ۱۳٫۵ | ۱۲٫۵۴ | – | ۱۵٫۶۵ | ۱۴٫۷۳ | ۱۴٫۷۰ | ۱۳٫۵ | |||||
| X0 % | ۳٫۳۲ | ۳ | ۲٫۷۹ | – | ۳٫۴۸ | ۳٫۲۷ | ۳٫۲۷ | ۳ | |||||
| نسبت اتصال کوتاه (Kcc) | ۰٫۵۰ | ۰٫۶۰ | ۰٫۸۰ | – | ۰٫۳۸ | ۰٫۴۳ | ۰٫۵۰ | ۰٫۶۰ | |||||
| ثوابت زمانی | Td’ (ثانیه) | ۰٫۰۴۸ | Td” (ثانیه) | ۰٫۰۱۴ | Tdo’ (ثانیه) | ۰٫۹۵ | Ta (ثانیه) | ۰٫۰۱۲ | |||||
| ظرفیت جریان اتصال کوتاه (%) | بیش از ۳۰۰ | ||||||||||||
| تحریک در حالت بدون بار (آمپر) | ۰٫۴۵ | ۰٫۶ | ۰٫۷ | – | ۰٫۳ | ۰٫۴ | ۰٫۵ | ۰٫۵۵ | |||||
| تحریک در حالت بار کامل (آمپر) | ۱٫۴ | ۱٫۶ | ۱٫۸ | – | ۱٫۳ | ۱٫۴ | ۱٫۵ | ۱٫۶ | |||||
| اضافه بار (طولانیمدت) (%) | ۱۱۰% بار نامی به مدت ۱ ساعت در ۶ ساعت | ||||||||||||
| اضافه بار در ۲۰ ثانیه (%) | ۳۰۰ | ||||||||||||
| مقاومت پیچش استاتور (۲۰°C) (اهم) | ۰٫۲۶۹ | ||||||||||||
| مقاومت پیچش روتور (۲۰°C) (اهم) | ۱٫۸۰۶ | ||||||||||||
| مقاومت تحریککننده (۲۰°C) (اهم) | روتور: ۰٫۶۴ | روتور: ۰٫۶۴ | روتور: ۰٫۶۴ | روتور: ۰٫۶۴ | استاتور: ۱۰٫۶۰ | استاتور: ۱۰٫۶۰ | استاتور: ۱۰٫۶۰ | استاتور: ۱۰٫۶۰ | |||||
| انتقال حرارت در f.l.cl.H (وات) | ۲۸۳۱ | ۲۷۲۷ | ۲۶۵۰ | – | ۲۵۷۱ | ۲۶۳۶ | ۲۸۱۶ | ۲۶۹۶ | |||||
| مداخله تلفن (FHT) | < 2% TIF < 45 | ||||||||||||
| مداخله رادیویی | EN50081-1، EN50082-1، VDE 0875K. برای استانداردهای دیگر به کارخانه مراجعه کنید. | ||||||||||||
| تحریف شکل موج (THD) در بار کامل (LL/LN) (%) | ۲ / ۲ | ||||||||||||
| تحریف شکل موج (THD) در حالت بدون بار (LL/LN) (%) | ۳٫۴ / ۳٫۲ | ||||||||||||
ویژگی های مکانیکی
| محافظت | IP 23 (محافظت دیگر به درخواست) | |
|---|---|---|
| بلبرینگ DE | ۶۳۰۹-۲RS | |
| بلبرینگ NDE | ۶۲۰۹-۲RS | |
| وزن مجموعه استاتور پیچیده (کیلوگرم) | ۵۳ | |
| وزن مجموعه روتور پیچیده (کیلوگرم) | ۲۸٫۲ | |
| وزن کل ژنراتور (کیلوگرم) | ۱۴۴ | |
| حداکثر سرعت اضافی (دور در دقیقه) | ۲۲۵۰ | |
| کشیدگی مغناطیسی نامتعادل در f.l.cl.F (kN/mm) | ۴٫۵ | |
| نیاز به هوای خنک کننده (متر مکعب در دقیقه) | ۵٫۳ | ۵٫۸ |
| ثابت اینرسی (H) (ثانیه) | ۰٫۰۷۴ | ۰٫۰۸۹ |
| سطح نویز در فاصله ۱م/۷م (dB(A)) | ۶۸ / ۵۷ | ۷۱ / ۶۱ |
نوع ژنراتور: ECO 28-2L4
۵۰ هرتز

منحنی کاهش اتصال کوتاه سه فاز. بدون تحریک بار در سرعت نامی
۶۰ هرتز

منحنی کاهش اتصال کوتاه سه فاز. بدون تحریک بار در سرعت نامی
دو گشتاور باربری اینرسی
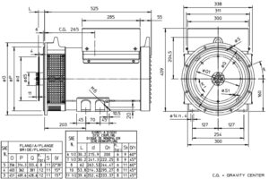
دو بعد بلبرینگ
ضمانت و گارانتی عارف دیزل به همراه مشاوره رایگان و نصب و اجرای حرفه ای
📞 مشاوره رایگان 09122847033







